2013年一级建造师建筑工程备考试卷精选1_第4页
|
(三、案例分析题(共5题,(一)、(二)、(三)题各20分,(四)、(五)题各30分)) |
| 31、 (一) 某18层写字楼工程建筑面积112000m²,采用箱形基础,框架-剪力墙结构,外墙面装饰1~2层天然花岗石幕墙,3~18层采用隐框玻璃幕墙。施工过程中发生如下事件: 事件一: 工程进展到第8层施工中,在拆除框架柱钢模板时发现部分框架柱混凝土在中下部位出现较为严重的孔洞。 事件二: 工程进展到第10层室内装修中,地板使用的硝基漆散发的大量的爆炸性混合气体在室内大量聚集,达到了很高的密度。此时,一装配电工点燃喷灯做电线接头的防氧化处理,引起混合气体爆燃起火,造成施工人员1人死亡、3人重伤的重大安全事故。经事故调查,该施工单位安全生产管理工作中缺乏统一性,没有周密的计划,规章制度不健全,致使在多项目、多部位、多工种施工条件下工作不能有序地进行。对使用的一些特殊建筑材料性能、使用方法,没有明确地进行技术交底,造成职工缺乏这一方面的知识。没有制定针对性的安全措施(通风设施),易燃、易爆气体在室内大量聚集,导致事故的发生。 事件三: 工程进展到第18层室内装修中,劳务分包方作业人员直接从窗口向外乱抛垃圾造成施工扬尘,工程周围居民因受扬尘影响,纷纷找到项目经理交涉要求立即停止施工,有的向有关部门进行了投诉。 问题: 1.分析事件一中部分框架柱混凝土出现较为严重孔洞的原因是什么?应如何处理? 2.分析事件二产生安全事故的原因? 3.说明事件二安全事故发生后,企业逐级汇报安全事故的时限是怎样规定的? 4.针对事件三的扬尘事件,项目经理应如何协调和管理? |
| 标准答案: 【案例一】答: 1.原因:(答出一条给1分,全部答出给2分) ①混凝土坍落度及和易性不好; ②混凝土浇筑时振捣不当; ③混凝土浇筑高度超过规定要求,且未采取措施,导致混凝土离析. 处理:(答出一条给1分,全部答出给3分) ①在框架柱孔洞处支模并支撑牢固; ②凿掉不密实的混凝土并凿成斜形外口向上; ③用清水冲洗干净并保持湿润72h; ④用高一级别的微膨胀细石混凝土浇筑捣实养护。 2.原因: ①施工现场管理人员缺乏安全技术知识,对易挥发的施工材料未进行严格管理,没有采取通风措施,使大量的混合气体聚集浓度很高,遇明火发生爆炸;(2分) ②作业人员缺乏在特殊环境下安全操作的基本的常识,在易燃、易爆气体浓度很高的情况下,动用明火作业;(2分) ③该企业对施工人员的安全教育培训工作不到位,没有进行安全技术交底,交叉作业协调管理不力。(1分) 3.时限 事故发生后,事故现场的项目经理应当立即向本单位负责人报告(2分);单位负责人接到报告后,应当于1h内向事故发生地县级以上人民政府安全生产监督管理部门和负有安全生产监督管理职责的有关部门报告(2分)。安全生产监督管理部门和负有安全生产监督管理职责的有关部门报告逐级上报事故情况,每级上报时间不得超过2h(1分)。 4.项目经理协调和管理:(打出一条给1分,全部答出给5分) ①向居民作好解释工作,避免以后施工过程中类似事件发生,取得居民谅解。 ②及时和当地环保部门、建设行政主管部门等有关单位联系沟通,取得其理解和支持。 ③加强劳务分包作业队伍管理、教育,提高劳务队伍环保意识,按分包合同规定对劳务分包方进行处罚。 ④要求分包采取袋装措施,垃圾装运下楼。 ⑤加强对本单位管理人员教育,提高现场监管力度。 |
| 本题分数: 20.00 分,你答题的情况为 错误 所以你的得分为 0 分 |
| 解析: |
| 32、 (二) 某全现浇大模板住宅工程,该工程共8层,采用框架结构,建筑面积5285m2。该工程项目周围为已建工程,因施工场地狭小,现场道路按3m考虑并兼作消防车道,路基夯实,上铺l50mm厚砂石,并做混凝土面层。搅拌机棚、砂石料只能在与已建工程之间间隙堆放。现场布置两个消火栓,间距l00m,其中一个距拟建建筑物4m,另一个距临时道路2.5m。供电设施已按照供电设计和施工总平面图布置完毕,施工现场临时用电配置,以“三级配电、末级漏保”配电保护方式。配电箱是从另一项目上调用直接投入使用的,经核实该配电箱漏电保护开关已经停用3个月。 该项目施工过程中,发生如下几项事件: 事件l:在主体结构施工至第四层时,发现部分混凝土试块强度不合格,因此,施工单位聘请了有法定资质的检测单位进行现场实体检测,检测结果实体强度能够达到设计要求。事件2:在外用电梯上升过程中,受7层阳台伸出的一根防护栏杆影响,架子工班长让正在脚手架上进行支模的木工王某立即拆除,王某随即进行拆除作业,结果不慎将钢管坠落,击中下方正在清理模板的张某,张某因安全帽被击穿,头部严重受伤,经抢救无效死亡。 事件3:在工程保修期间发生了由于施工单位原因引起的屋顶漏水、墙面剥落等问题,业主多次催促施工单位修理,而施工单位却一再拖延,业主便另请其他施工单位维修。 问题: (1)该工程消防车道设置是否合理?试说明理由。 (2)该工程消火栓设置是否妥当?试说明理由。 (3)试说明施工现场供电设计要点有哪些?现场用电量包括哪些内容? (4)该项目现场配电布置有无不妥之处?请指出并说明理由。 (5)对事件1混凝土试块强度不合格的质量问题是否需要处理?并说明理由。如果混凝土强度经测试论证后达不到设计要求,需要进行处理,可采用哪些处理方法? (6)分析说明事件2有哪些违章之处? (7)对事件3所发生的维修费用该如何处理? |
| 标准答案: 【案例二】答: (1)该工程消防车道设置不合理。消防车道要求不小于4m(本案例中将临时道路兼作消防车道3m)。 (2)该工程消火栓设置不妥。消火栓距拟建建筑要求不小于5m(本案例为4m),距临时道路不大于2m(本案例为2.5m)。 (3)临时供电设计主要包括:用电量计算、电源选择、电力系统选择和配置。用电量计算包括:电动机用电量、电焊机用电量、室内外照明用电等。 (4)该项目现场配电布置不妥。施工现场临时用电配置,以“三级配电、二级漏保”配电保护方式,还推荐使用“三级配电、三级漏保”配电保护方式。另外,配电箱漏电保护开关已经停用3个月,而且从另一现场转入,直接投入使用也是不妥当的。根据规定,配电箱漏电保护开关有停用3个月以上、转换现场、大电流短路掉闸情况之一,漏电保护开关应采用漏电保护开关专用检测仪重新检测,其技术参数符合相关标准后方可投入使用。 (5)对该混凝土试块强度不合格的质量问题可不作处理。 原因是该质量问题经法定检测单位检测鉴定后,实体强度能够达到设计要求,因此该质量问题不需进行处理。如果混凝土强度经测试论证后达不到设计要求,可采取的处理方案有:封闭防护、结构卸荷、加固补强、限制使用、拆除重建等。 (6)事件2中违章之处主要有: ①架子工班长违章指挥工人作业; ②工人混岗作业,木工不能担任拆除作业; ③木工王某听从了架子工班长的违章指挥,他有权拒绝; ④拆除工作未经现场负责人同意,擅自拆除; ⑤拆除时未采取防护措施,未设置警戒区,拆除区域下方站人。 (7)事件3所发生的维修费应从乙方保修金中扣取。 |
| 本题分数: 20.00 分,你答题的情况为 错误 所以你的得分为 0 分 |
| 解析: |
| 33、 (三) 某10层住宅楼为钢筋混凝土框架结构,总建筑面积12000m2。外檐装修大部分为下部镶贴花岗石、上部水泥砂浆抹灰及涂料涂饰,少部分采用玻璃幕墙。业主委托了某监理公司进行施工阶段的监理。 工程开工前,由项目经理主持编制了该工程的单位工程施工组织设计、质量计划和施工项目管理规划大纲。 基坑开挖后,验槽时发现在某柱基处有一口枯井,施工单位用2:8灰土进行了夯填处理,随后进行了钢筋混凝土基础的施工。基础施工完成后进行了基坑土的回填,在进行回填土密实度检查时,发现因回填土含水率过小造成了填土密实度不足,于是施工单位采用大功率压实机械碾压进行了补救。 施工合同规定,该工程所使用的水泥由建设单位采购。水泥进场时,施工单位按规定进行了检查和复验,未发现质量问题。但在填充墙砌筑后,检查发现墙体强度达不到要求,经分析是由于水泥质量有问题而造成。为解决此质量问题,施工单位对墙体进行了返工,造成了经济损失和工期的拖延,为此施工单位向建设单位提出费用和工期索赔。而建设单位以材料进场时施工单位已对水泥进行了检查和复验为由不予赔偿。 在工程主体施工过程中,因为模板支撑架不牢固,出现了模板坍塌事故,造成3人重伤,直接经济损失12万元。 在工程装饰装修施工中,因需使用氧气瓶和乙炔瓶,工人将此两瓶放置在距明火作业5m远的地方进行施工。安全员检查时,要求施工人员改正,施工人员认为没有问题,对安全员的要求不予理睬。在玻璃幕墙施工中,施工人员在填充墙体上使用抽芯铝铆钉连接幕墙立柱,并对明框玻璃幕墙承受水平荷载的玻璃板块采用了射钉固定。 工程施工结束后进行了竣工验收,验收时进行了室内环境质量检测。检测时检测点的布置按房间面积设置,每一个检测点要求距离墙面不小于lm、距楼地面高度不小于1.8m。 在工程施工过程中,施工单位为保证现场的施工安全,在现场人口处、临时用电设施处、出人通道口、孔洞口、基坑边缘及有害气体和液体存放处设置了安全警示牌。 问题: 1.请指出施工单位、建设单位在该工程施工过程中的错误做法,并说明理由。 2.对施工单位采购的材料,在材料进场时应采取什么程序进行检查和复验? 3.该工程的基础分部工程应怎样组织验收? 4.玻璃幕墙施工中隐蔽工程验收的内容是什么? |
| 标准答案: 【案例三】答: 1.建设单位错误做法: 对于水泥不合格导致的质量问题不予赔偿,原因:甲方采购材料不合格,无论施工单位检查复验结果如何,都应承担赔偿责任。 施工单位错误做法: 由项日经理主持编制施工项目管理规划大纲,应由企业管理层在投标前编制。 发现枯井并回填后直接进行钢筋混凝土基础施工,应报告建设单位,经勘察设计单位出具施工方案后按方案进行施工。 气瓶距明火距离应大于l0m,施工人员不改正,应上报项目经理处理。 幕墙立柱不能用铝铆钉连接在填充墙上,更不能用射钉固定玻璃板。 室内检测点布置不对,距墙大于0.5m,距楼地面高度0.8~1.5m之间。 2.材料进场以前,通知建设单位(监理单位)进行验收,并出具厂家生产许可、出厂合格证、出厂试验报告及其他相关证件; 现场查验到场材料产地、规格、型号、数量是否相符; 在建设单位(监理单位)见证下按相关规定取样复试。 3.基础分部工程应按如下程序组织验收: (1)施工单位组织相关人员进行自检自评; (2)报监理单位; (3)由监理单位组织建设、设计、勘察及施工单位共同进行分部工程验收。 4.玻璃幕墙施工中隐蔽工程验收的内容主要如下: (1)预埋件或后置埋件; (2)构件的连接节点; (3)变形缝及墙面转角处的构造节点; (4)幕墙防火装置、防雷构造; (5)幕墙四周、内表面与主体结构之间的封堵; (6)单元式幕墙的封口节点。 |
| 解析: |
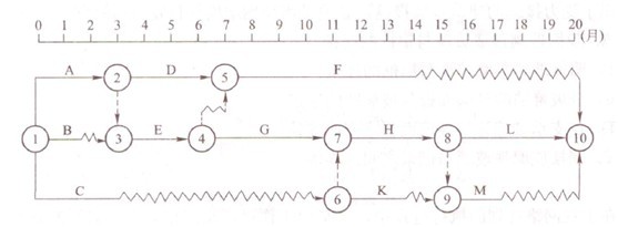
| 34、 (四) 某工程施工进度计划网络图如下所示,假定各项工作均匀速施工。由于工作B、工作L、工作H为采用特殊工艺的施工过程,涉及某专利技术的采用,故这三项工作只能由某一特定的施工队来完成。 ![]() 问题: 1.在不改变原施工进度计划总工期和工作间工艺关系的前提下,如何安排工作B、工作C、工作H这三项工作比较合理,试计算此时该专业施工队从进场到出场最短需要多少时间,其中最少的间断工作时间多少个月。 2.由于种种原因,使得工程前期进展拖延,第10月初对工程实际进展情况进行检查发现,G工作刚刚开始,其他工作进展均后延4个月。现业主方要求仍按原计划时间竣工,施工单位将工作G、H、L划分为两个流水段组织流水作业,具体数据见下表: ![]() 试问G、H、L三项工作的流水施工工期为多少?能否满足业主提出的按原计划日期竣工的要求,简述理由。 |
| 标准答案: 【案例四】答: 1.由网络图可知,B工作自由时差为1天,C工作自由时差为8天,H工作在关键线路上,总时差为0。在不影响总工期和工作间工艺关系的前提下,B工作和C工作的开始时间均应后延,B工作以不影响E工作正常开始为准,即1月末开始施工,其次开始C工作,然后间断施工,待G工作施工完毕后,再开始H工作的施工。 施工顺序为:B—C—H 该专业施工队从进场到出场最短需要时间为:14个月,其中间断时间为5个月。 2.工作G、H、L为无节奏流水施工,按最大差法计算其流水施工工期: (1)各施工过程流水节拍的累加数列: 工作G:2 5 工作H:2 4 工作L:2 5 (2)错位相减,取最大值得流水步距: ![]() (3)G、H、L三项工作的流水施工工期为(2+3)+(3+2)=10月。 (4)此时,线路G—H—L工期缩减至10个月;工作F线路自由时差为6个月,压缩4个月后仍不会成为关键线路;线路G—H—M工期相应缩减至3+(2+2)=7,也不会成为关键线路,故此时的关键线路仍为G—H—L,整个工程总工期为6+10=16个月,正好弥补施工初期4个月的工期滞后,可满足业主提出的按原计划日期竣工的要求。 |
| 本题分数: 30.00 分,你答题的情况为 错误 所以你的得分为 0 分 |
| 解析: |
| 35、 (五) 某小学工程的计划进度和实际进度如下表所示,表中粗实线表示计划进度(进度线上方的数据为每周计划完成工作预算成本),粗虚线表示实际进度(进度线上方的数据为每周实际发生成本),假定各分项工程每周计划完成总工程量和实际完成总工程量相等,且进度均匀进展。 问题: 1. 计算每周成本数据,并将结果填入下表中。 2.分析第4周末和第7周末的成本偏差(CV)和进度偏差(SV)。 3.计算8周末的成本绩效指数(CPI)和进度绩效指数((SPI)并分析成本和进度状况。 |
| 您的答案: 标准答案: 【案例五】答: 1.计算每周的投资数,结果见下表。 2.分析第4周末和第7周末的成本偏差和进度偏差: (1)从表中看出:第4周末的成本偏差和进度偏差; 成本偏差:CV=BCWP-ACWP=38– 36=2万元>0,表示项目运行节支2万元,即:实际成本没有超出预算成本。 进度偏差:SV=BCWP-BCWS=38– 48=-10万元<0,表示进度拖后,即:实际进度落后于计划进度。 (2)从表中看出:第7周末的成本偏差和进度偏差; 成本偏差:CV=BCWP-ACWP= 74– 70 = 4万元>0,表示项目运行节支4万元,即:实际成本没有超出预算成本。 进度偏差:SV= BCWP-BCWS = 74 – 74=0,表示项目按计划进行,即:实际进度等于计划进度。 3.计算第8周末的成本绩效指数和进度绩效指数。 (1)成本绩效指数:CPI= BCWP/ACWP= 79/74 =1.07,由于CPI > 1,故费用节支,即实际成本低于预算成本。 (2)进度绩效指数:SPI=BCWP/BCWP=79/79=1.0,由于SPI=1。故实际进度与计划进度相同。 |
| 本题分数: 30.00 分,你答题的情况为 错误 所以你的得分为 0 分 |
| 解析: |
考试交流区成绩查询交流群(点击加入QQ群可快速加群交流成绩查询相关信息我们会及时在群里通知):
温馨提示:有任何报考及考试相关疑问,可添加网校专业老师个人微信号“edu24olxu”咨询。!考生可下载手机APP,随时掌握考试资讯!

扫一扫上面的二维码,添加老师个人微信号,所有课程七折开通
相关推荐:相关文章
版权声明 --------------------------------------------------------------------------------------
如果本站所转载内容不慎侵犯了您的权益,请与我们联系
,我们将会及时处理。如转载本站内容,请注明来源:一级建造师考试网(www.jzsedu.org)。
如果本站所转载内容不慎侵犯了您的权益,请与我们联系
,我们将会及时处理。如转载本站内容,请注明来源:一级建造师考试网(www.jzsedu.org)。学员登陆
网校历年通过率

环球网校一级建造师历年通过率比较
![]() 张君老师 |
张君老师:建造师管理授课老师,硕士。课堂气氛活跃,善于调动学员积极性,被学员称为神君老师。..[详细] |
![]() 陈明教授 |
陈明:市政授课老师。有“市政之神”和“建造师市政第一人”的美誉。工程实践培训经验丰富,授课思路清晰..[详细] |









